
Il numero 4/2020 di Costruzioni Metalliche è dedicato interamente al ponte San Giorgio di Genova.
Oltre 70 pagine di articoli su un’opera davvero speciale nel panorama delle opere infrastrutturali italiane, con le voci di Italferr, Matildi+Partners, Fincantieri Infrastructure, IIS SERVICE, Fagioli, RINA Consulting, Centro Inox ed Harpaceas:
Angelo Vittozzi, Felice Bonifacio
U.O. Opere Civili Italferr S.p.A.
Stefano Isani, Guido Cammarota, Paolo Barrasso
Studio Matildi+Partners
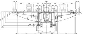
IL PONTE SAN GIORGIO A GENOVA
La storia del progetto dell’impalcato dalla concezione al collaudo

Siro Dal Zotto, Vito Cardella, Andrea Morbin, Lorenzo Sartori, Marco Raccagni,
Gioacchino Sarcina, Francesco Poltronieri
Fincantieri Infrastructure S.p.A.
PONTE SAN GIORGIO DI GENOVA
LA REALIZZAZIONE DI UN’OPERA ICONICA

Federico Baiardo, Daniele Castagnola Sternini
IIS SERVICE, Genova
LA SALDATURA DI PREFABBRICAZIONE E MONTAGGIO DEL VIADOTTO SAN GIORGIO

Marco Salsi
Fagioli SPA
IL MONTAGGIO DEL NUOVO PONTE SAN GIORGIO CON MEZZI DI SOLLEVAMENTO SPECIALI

A. Aliotta, E. Puppo, A. Tomarchio, M. Cademartori, S. Dellacasagrande, A. Figundio
RINA Consulting S.p.A. – Genova
PROJECT MANAGEMENT, DIREZIONE LAVORI E COORDINAMENTO SICUREZZA DEL NUOVO PONTE GENOVA SAN GIORGIO

Francesco Lipari
Centro Inox – Associazione italiana per lo sviluppo degli acciai inossidabili.
BARRE AD ADERENZA MIGLIORATA IN ACCIAIO INOSSIDABILE NEL NUOVO PONTE DI GENOVA

Fabrizio Ferraris, Carmine Robbe
HARPACEAS – Milano
PONTE SAN GIORGIO DI GENOVA: IL RUOLO CHIAVE DELLA COLLABORAZIONE BIM