Prof. Ing. Giuseppe Matildi, Dott. Ing Carlo Vittorio Matildi
titolari dello studio associato MATILDI+PARTNERS
Dott. Ing. Paolo Barrasso, Dott. Ing. Federica Ricci, Dott. Ing. Stefano Isani
collaboratori dello studio associato MATILDI+PARTNERS

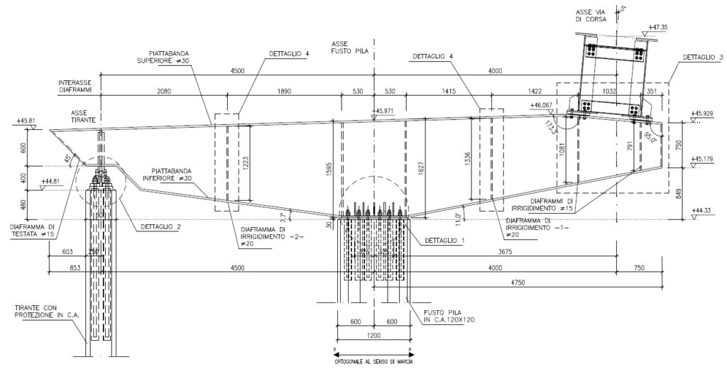
Il Marconi Express, meglio conosciuto come People Mover, è il Sistema di trasporto pubblico che collegherà l’aeroporto Guglielmo Marconi con la stazione di Bologna Centrale in soli sette minuti, procedendo a una velocità massima di 70 km/h in sede protetta. Per eliminare ogni interferenza con il tessuto urbano e infrastrutturale di Bologna, il tracciato si sviluppa interamente in viadotto, con l’unica eccezione data dal piccolo sottopasso che attraversa il rilevato della linea ferroviaria di collegamento della stazione sotterranea TAV di Bologna con la direttrice Bologna-Padova. Ciò significa, in buona sostanza, che tra l’aeroporto Marconi e la stazione ferroviaria c’è un unico viadotto lungo 4,925 km con più di 140 campate. La specificità strutturale principale del viadotto discende dalla scelta di utilizzare la struttura stessa come via di corsa del veicolo che ci corre sopra, con la conseguente necessità di rispettare soprattutto vincoli di sicurezza, direzionalità e comfort, prima che vincoli di natura meramente statica. Il livello di precisione richiesta e la serialità quasi “industriale”, con cui si ripete ogni elemento, hanno imposto uno studio costruttivo di dettaglio, nella convinzione che anche la più piccola semplificazione in termini costruttivi comporta sui 5 km totali significativi risparmi non solo economici ma anche in termini di manutenzione ed esercizio. Cercare l’efficienza ingegneristica ed economica di ogni elemento su diversa scala, dalla struttura agli elementi accessori, mantenendo al contempo inalterata la visione architettonica unitaria proposta in sede di gara, ha costituito la più grande sfida nella progettazione dell’opera, per questo unica nel panorama italiano e mondiale. Il presente articolo riassume le principali specificità che hanno informato il progetto, dalla sua fase di concezione a quella di costruzione, passando per le peculiari operazioni di collaudo.

Leggi l’articolo completo su Costruzioni Metalliche, n. 2/2020.

Lascia un commento